Maite filter
旋流脱气除污器
免费定制方案 免费到厂考察 免费获取报价!
产品说明:螺旋脱气除污器(水气分离器)水系统中的空气对系统中的水泵、锅炉、热交换器、制冷机等设备及部件易产生腐蚀和损坏,使用寿命及效率大大降低。仅在系统高点设置排气阀效果不佳,当压力减少时被溶于水中气体会重新形成气泡,尤其在水泵前会有大量气体分离出来...
香蕉视频IOS在线观看过滤设备携手各行业打造满足香蕉视频APP污污软件免费需求产品的保障
螺旋脱气除污器(水气分离器)水系统中的空气对系统中的水泵、锅炉、热交换器、制冷机等设备及部件易产生腐蚀和损坏,使用寿命及效率大大降低。仅在系统高点设置排气阀效果不佳,当压力减少时被溶于水中气体会重新形成气泡,尤其在水泵前会有大量气体分离出来。
产品简介:
螺旋脱气过滤器利用气水分离、沉降、过滤等机理。当冷却水、热水、冷冻水系统中水进入螺旋脱气过滤器时,体积扩大,流速急剧降低,水中气泡分离上升至聚气区,小气泡吸附在分离板上,当形成大气泡上升至聚气区后通过自动排气阀排除。带有污物的循环水在过滤器中污物随水流沉降,通过分离板后污物得到了加速,在滤芯的两侧迅速沉降在存污区,因存污区容污量大,只需定期开启排污阀。经过空气和污物分离较干净的水经滤芯流入水泵入口,由于水泵及水流的冲击下滤芯有较小的振动,能将个别贴附在滤芯外侧的污物振落,达到自洁的目的。
通过一个装置起到的净化水系统中的气泡和杂质的功能。由于这个整合的举动,所有的气泡和微小的杂质将会被永久的脱除,保持系统不受气泡和杂质得困扰。它与传统的过滤器和除污器工作方式不同,维护很少。这个装置是否能够在供热系统里发挥它的作用取决于不同方面。香蕉视频IOS在线观看的技术专家会根据实际情况给予您好的解决方案。
脱水除污器必须安装在主线上,而且好为系统温度高点。对于供热系统,佳位置是供热机组的出口。对于制冷系统,温度高点在制冷机组的回水管上。
技术参数:
(1)压力范围:0.6、1.0、1.6MPa;
(2)高使用温度:95℃;
(3)规格型号:DN50~DN1500;
(4)流量范围:7-20000m3/h
(5)过滤网常用规格:8、10、14、20、30、70、150目
(6)排气率:99%
(7)排污率:99%
(8)处理效果: 除砂直径:>0.1mm、出水浊度:≤10NTU、水头损失:<0.02Mpa
(9) 进水水质:原水浊度:≥300NTU进水压力:≤0.25Mpa
(10)特殊规格按用户要求特制。
设备特点:
● 脱除循环系统中的气泡和气团
● 大幅减少系统次注水后的调试时间,不需要额外的排气阀
● 可在系统运行的情况下排除污物
● 可以脱除小至5微米(=0.005MM)的污物杂质
● 同类产品中低的压降比
● 不会造成不必要的系统停机
● 广泛适用于不同压力,温度和材质
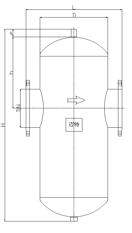
设备简图:

选型参数:
型 号 | 管径DN(mm) | 流量(m3/h) | 外型尺寸(mm) | 重 量 (Kg | ||||
H | h | D | e | L | 29 | |||
MQT-S50 | 50 | 25 | 510 | 160 | 220 | 20 | 470 | 33 |
MQT-S65 | 65 | 40 | 510 | 150 | 220 | 20 | 470 | 57 |
MQT-S80 | 80 | 55 | 640 | 200 | 330 | 25 | 640 | 61 |
MQT-S100 | 100 | 95 | 640 | 210 | 330 | 25 | 640 | 97 |
MQT-S125 | 125 | 145 | 830 | 290 | 426 | 25 | 780 | 114 |
MQT-S150 | 150 | 220 | 830 | 300 | 426 | 25 | 780 | 189 |
MQT-S200 | 200 | 360 | 980 | 360 | 610 | 25 | 890 | 300 |
MQT-S250 | 250 | 575 | 1200 | 400 | 610 | 50 | 1010 | 390 |
MQT-S300 | 300 | 810 | 1580 | 450 | 710 | 50 | 1200 | 563 |
MQT-S350 | 350 | 1030 | 1720 | 500 | 810 | 50 | 1420 | 670 |
MQT-S400 | 400 | 1350 | 1810 | 550 | 920 | 50 | 1220 | 870 |
MQT-S450 | 450 | 1710 | 2030 | 610 | 1020 | 50 | 1620 | 1118 |
MQT-S500 | 500 | 2120 | 2170 | 660 | 1120 | 50 | 1710 | |
备 注 | 设备压力默认为1.6Mpa,MQT-S40、MQT-S50默认为螺纹连接,如有特殊要求,订货时请说明,也可根据香蕉视频APP污污软件免费要求订做其它规格的设备。 | |||||||
细节展示:

安装注意事项:


MQT-S基本型 MQT-XS 可拆卸型
1. 设备必须水平安装,安装时注意箭头指示方向,箭头指示方向即为水流方向。
2. 由于该设备工作过程中无运动部件,免维护,因此设计、安装时可根据现场实际情况布置。
3. 设备进出口的管道上,应以靠近管口处设置管道支架;直接与容器管口相连接的大于或等于DN150的阀门下面宜设置支架。
4螺旋除渣器进出口均为国标法兰。设备进水口、出水口均需安装 阀门。
8 使用说明
1. 正常工作时,需开启进、出水阀门,关闭排污阀。
2. 排污时打开排污阀,直到流出清水。
3. 排污完毕后,关闭排污阀即可。
4. 如排污压力不足,可关闭出水口处的阀门。
5. 安装时应注意管道及水流方向。
6. 平面布置需要流出管理人员操作空间。由于该设备工作过, 程无, 运动, 部件,即该设备免维护。但需保持入口负荷稳定,排污阀开闭用力均匀。避免人为损坏
香蕉视频IOS在线观看过滤设备携手各行业打造满足香蕉视频APP污污软件免费需求产品的保障
| 设备原理:: | 丝网拦截 | 设备型号:: | MQT |
| 额定流量:: | 0~2000m3/h | 设计压力:: | 0.4~1.6mpa |
| 设备材质:: | Q235 / 304 /316L | 适用温度:: | 0~180℃ |
| 适用范围:: | 市政供暖管道、温泉井供水系统、锅炉供水供热系统、石油天然气开发、煤层气开采 |
香蕉视频IOS在线观看过滤设备携手各行业打造满足香蕉视频APP污污软件免费需求产品的保障